AOC / ARCHITECTE Saumur

  • Accueil
  • Présentation
    • Atelier
    • Missions
    • F.A.Q.
  • Projets
    • Intérieur
    • Rénovation
    • Extension
    • Gites
    • Neuf
    • Public
  • Conseils
  • Actus
  • Contact

Extensions de Maisons à Saumur

Agrandir pour redéfinir l'espace de vie

L'extension d’une maison est l'art d’ajouter de l’espace tout en préservant l’équilibre et l’âme d’un lieu. Il ne s’agit pas seulement d’agrandir, mais de métamorphoser un habitat pour y introduire de nouvelles fonctions sans rompre son harmonie. Qu’il s’agisse de créer une suite parentale, de modifier l'existant pour créer une grande pièce à vivre ou d’ouvrir les espaces de vie sur le jardin, chaque projet est l'occasion de repenser la maison avec poésie et précision. Dans le cadre exceptionnel de Saumur, entre Angers et Tours, l’architecte Olivier Charrier vous accompagne pour transformer votre habitat en un lieu à la fois moderne et respectueux de son environnement.

Offrir à votre maison une nouvelle vie

L’extension de votre maison est plus qu'un agrandissement ; c’est un bouleversement. Votre espace de vie est transformé et doit répondre à vos besoins tout en respectant l’âme de votre habitation. Confier votre projet à l’architecte Olivier Charrier, c’est choisir une vision sur mesure, alliant sensibilité architecturale et expertise technique.

Une suite parentale au RDC

L'ajout d’une suite parentale en rez-de-chaussée permet de repenser l’organisation de votre maison en créant un espace de vie plus accessible et fonctionnel. En réaménageant un garage ou une buanderie, l’extension offre une chambre avec salle de bain privative, tout en ajoutant des mètres carrés précieux à votre habitation. Ce projet est particulièrement adapté aux familles souhaitant anticiper leurs besoins futurs. L’architecte, en tant qu’expert, apportera une vision créative pour intégrer cette extension à l'existant.

Surélévation d'une maison de bourg

La surélévation est la solution idéale lorsque l’espace sous toit n’est pas exploité à son plein potentiel. En remontant les murs et la charpente, elle permet d’aménager des chambres spacieuses, lumineuses et confortables.

Olivier Charrier s’assure que la surélévation s’intègre parfaitement à l’existant et respecte les directives du PLU. En plus d’améliorer le confort de vie, cette opération permet d'augmenter la performance énergétique de la maison grâce à des solutions d’isolation optimisées.

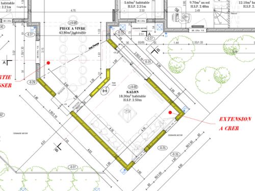
L'extension comme un lien qui relie

Certaines extensions permettent de relier, apportant un volume supplémentaire qui s’intègre harmonieusement à l’architecture existante. L’enjeu réside dans la manière de relier subtilement l’extension à la maison, tant par l’aspect extérieur que par l’intérieur, en imaginant des circulations d’espaces fluides et cohérentes. L’architecte se confronte au défi de structurer l’ouverture des murs porteurs, permettant de créer un passage naturel et fluide entre les volumes tout en garantissant la solidité et l’équilibre de l’ensemble.

Un Projet Sur Mesure
Chaque projet est unique et doit être conçu en fonction de vos attentes, des contraintes du site. L’architecte Olivier Charrier veille à chaque détail, de l’implantation des volumes à la sélection des matériaux, pour que l’extension devienne un prolongement naturel et harmonieux de votre maison

Un projet Pérenne
L’extension est également l’opportunité de repenser la performance énergétique de votre habitation. Choisir des matériaux durables et optimiser l’isolation thermique sont des étapes essentielles pour garantir une construction respectueuse de l’environnement et de votre confort au quotidien.

Olivier CHARRIER
Architecte DPLG à Saumur
Architecte inscrit à l’Ordre des
Architectes des Pays de la Loire
n°074164
Entreprise individuelle
Siret : 413 201 849 00085

AOC Architecture

31, rue du Vieux Bagneux
49400 Saumur

06 40 06 41 84
contact@aoc-architecte.fr

  • Accueil
  • Présentation
  • Projets
  • Conseils
  • Actus
  • Contact

Copyright : Atelier d'Architecture Olivier Charrier - 2025 - Site réalisé avec WebAcappellaFusion - F.A.Q. - Mentions Légales

Nous avons privilégiez une sobriété du contenu Textes et images sur les formats Smartphone Sm et Xs, nous vous invitons donc à revoir notre site sur les écrans d'ordinateurs Lg, Md pour découvrir plus de détails sur l'Atelier AOC.

Saumur - Montsoreau - Fontevraud l'Abbaye - Montreuil-Bellay - Doué en Anjou - Gennes Val de Loire - Beaufort en Anjou - Baugé en Anjou - Longué-jumelles - Vernantes - Noyant Villages - Brain sur Allonnes - Bourgueil